Projeto de segurança contra incêndio e pânico

Clique nas imagens para ampliar

projeto de segurança contra incêndio e pânico: Cuidando da Proteção do Seu Patrimônio

A Technical Fire, fundada em 1999, é uma empresa especializada em soluções para prevenção e combate a incêndios que atua na região de Itu, São Paulo, desenvolvendo projeto de segurança contra incêndio e pânico.

Com uma equipe de profissionais capacitados, a Technical Fire oferece uma ampla gama de serviços, desde a elaboração de projetos técnicos e laudos até a instalação e manutenção de sistemas de segurança contra incêndio e pânico.

Elaboração de Projetos Personalizados

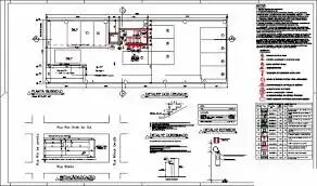
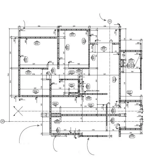
A elaboração de projetos de segurança contra incêndio e pânico pela Technical Fire é feita sob medida para atender às necessidades específicas de cada cliente.

A empresa realiza estudos detalhados de layout, ocupação e acessos, definindo os melhores sistemas de alarme, hidrantes, extintores e sinalização de emergência.

Além disso, a Technical Fire dimensiona as rotas de fuga e a iluminação de emergência, possibilitando que todas as medidas necessárias estejam conforme as normas vigentes e prontas para uma resposta rápida em situações de emergência.

Soluções Integradas e de Qualidade

A Technical Fire atua de forma integrada com engenheiros e arquitetos, assegurando a compatibilidade entre as soluções adotadas e mantendo um padrão elevado de qualidade em todos os projetos executados.

Todos os processos seguem as normas da ABNT e as exigências dos corpos de bombeiros, cuidando da segurança e tranquilidade dos clientes.

Equipamentos e Treinamentos Especializados

Além da elaboração de projetos, a Technical Fire também fornece uma ampla gama de equipamentos de combate a incêndios, como extintores de diversas classes, bombas de incêndio, mangueiras, portas corta-fogo, entre outros.

A empresa também conta com um centro de treinamento próprio para formação de brigadas de incêndio, para que os colaboradores estejam preparados para agir em casos de emergência.

Com um atendimento focado em empresas industriais, comerciais e condomínios no estado de São Paulo, a Technical Fire se destaca pela excelência de seus serviços e pelo compromisso com a segurança de seus clientes.

Entre em Contato com a Empresa para Saber Mais!

Se você busca proteção e segurança para o seu patrimônio, conte com a expertise da Technical Fire.

Entre em contato para saber mais sobre os serviços e como a realização de um projeto de segurança contra incêndio e pânico pode ajudar a proteger o seu negócio contra incêndios e cuidar da segurança de todos os envolvidos!

Entre em contato agora mesmo!

Clique no botão e entre em contato para tirar dúvidas ou solicitar um orçamento.

Entre em contato



Regiões onde a TECHNICAL atende Projeto de segurança contra incêndio e pânico:


WhatsApp TECHNICAL
TECHNICAL www.technicalfire.com.br Online
Fale com a gente pelo WhatsApp
×