Execução de projetos de combate a incêndio

Clique nas imagens para ampliar

COLOCANDO EM PRÁTICA A EXECUÇÃO DE PROJETOS DE COMBATE A INCÊNDIO

Segundo as leis municipais e estaduais toda edificação de uso coletivo deve proceder à execução de projetos de combate a incêndio após a aprovação por parte do Corpo de Bombeiros do projeto contra incêndio elaborado por técnicos especializados.

Após a execução de projetos de combate a incêndio, a edificação passará por uma vistoria do Corpo de Bombeiros que, sendo aprovada, emitirá o Auto de Vistoria do Corpo de Bombeiros (AVCB), atestando condição de segurança e uso do estabelecimento. As residências unifamiliares são livres da execução de projetos de combate a incêndio

execução de projetos de combate a incêndio pela Technical Fire é realizada por nossos colaboradores altamente qualificados e especializados, que irão prestar assessoria em todas as etapas, de acordo com a determinação dos órgãos responsáveis. Contratando nossos serviços, nossos clientes podem ficar tranquilos e podem ter total confiança na perfeita execução.

CONTEÚDO DA EXECUÇÃO DE PROJETOS DE COMBATE A INCÊNDIO

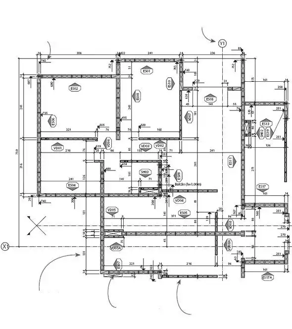
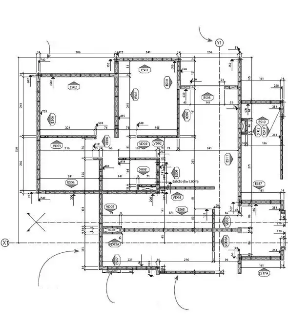
execução de projetos de combate a incêndio começa com a elaboração de uma planta baixa da edificação, tendo como foco determinar o tipo de ocupação, dimensão das áreas e outros sistemas já instalados, como o hidráulico e o elétrico. 

O projeto de combate a incêndio deve orientar quanto à localização dos equipamentos de combate ao incêndio, as características técnicas e a vazão de água dos hidrantes e as indicações referentes à execução de projetos de combate a incêndio.

Os equipamentos que devem constar no projeto são:

  • Sistemas de proteção por hidrantes;
  • Chuveiros automáticos (sprinklers);
  • Sistemas de detecção e alarmes, como botoeiras;
  • Iluminação e sinalização de emergência;
  • Extintores;
  • Escada pressurizada, quando necessário;
  • Rota de fuga.

TECHNICAL FIRE É ESPECIALISTA NA EXECUÇÃO DE PROJETOS DE COMBATE A INCÊNDIO, CONHEÇA-NOS

A Technical Fire atua no mercado há mais de 15 anos, especializada em executar projetos de prevenção a incêndio e assessoria e manutenção de equipamentos já instalados em empresas diversas.

Contamos hoje com nosso centro de treinamento com salas de aula, anfiteatro e quadra com simuladores de incêndio e obstáculos a fim de preparar brigadistas e bombeiros civis com nível técnico altíssimo.

Alcançamos nível de excelência junto aos clientes na prestação de serviço e junto a grandes parceiros da construção civil, em função do comprometimento de nossos colaboradores em servir e garantir a segurança de todos.

Entre em contato agora mesmo!

Clique no botão e entre em contato para tirar dúvidas ou solicitar um orçamento.

Entre em contato



Regiões onde a TECHNICAL atende Execução de projetos de combate a incêndio:


WhatsApp TECHNICAL
TECHNICAL www.technicalfire.com.br Online
Fale com a gente pelo WhatsApp
×